Wohnimmobilie > Penthouse-Wohnung
Zu Verkaufen

EXKLUSIVES PENTHOUSE AM LEINPFADKANAL

20249 Hamburg
8.900.000 €

HLS_124
423 m²
6
Dieses exklusive Maisonette-Penthouse über den Dächern Hamburgs vereint zeitlose Eleganz mit modernstem Wohnkomfort und erstklassiger Ausstattung. Die lichtdurchfluteten Räume und die durchdachte, offene Raumaufteilung schaffen ein außergewöhnliches Wohnambiente für allerhöchste Ansprüche.

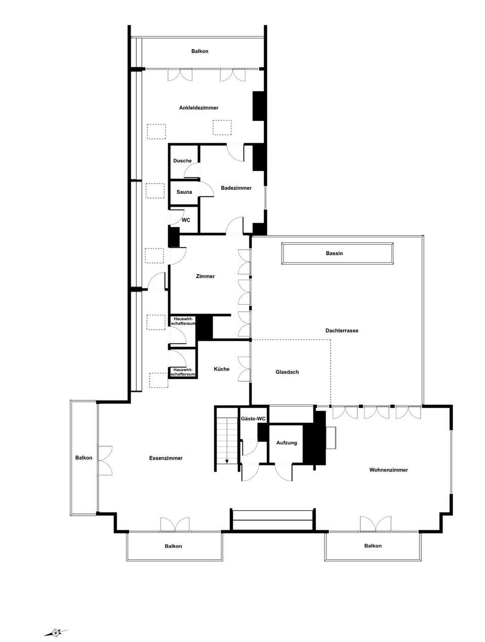
Ein architektonisches Statement bildet das Herzstück dieser Wohnung: die großzügige, teilüberdachte Dachterrasse mit beleuchtetem Wasserbassin, stilvollem Glasdach, integrierten Heizstrahlern und einem traumhaften Ausblick.
Sie schafft ein privates Refugium mit außergewöhnlichem Flair – ideal für entspannte Stunden und exklusive Abende über der Stadt. Der direkte Aufzug ins Penthouse unterstreicht die Besonderheit und den hohen Anspruch.

Mit viel Liebe zum Detail gestaltet, überzeugt die Wohnung durch edle Materialien und hochwertige Ausstattungsmerkmale. Edle Dielen- und Limestoneböden, zwei elegante Kamine, maßgefertigte Einbauten sowie ein integriertes SONOS-Musiksystem sorgen für stilvolle Behaglichkeit. Eine moderne Design-Einbauküche und eine separate Wirtschaftsküche mit Speiseaufzug bieten höchsten Komfort für anspruchsvolles Kochen und stilvolle Gastlichkeit.

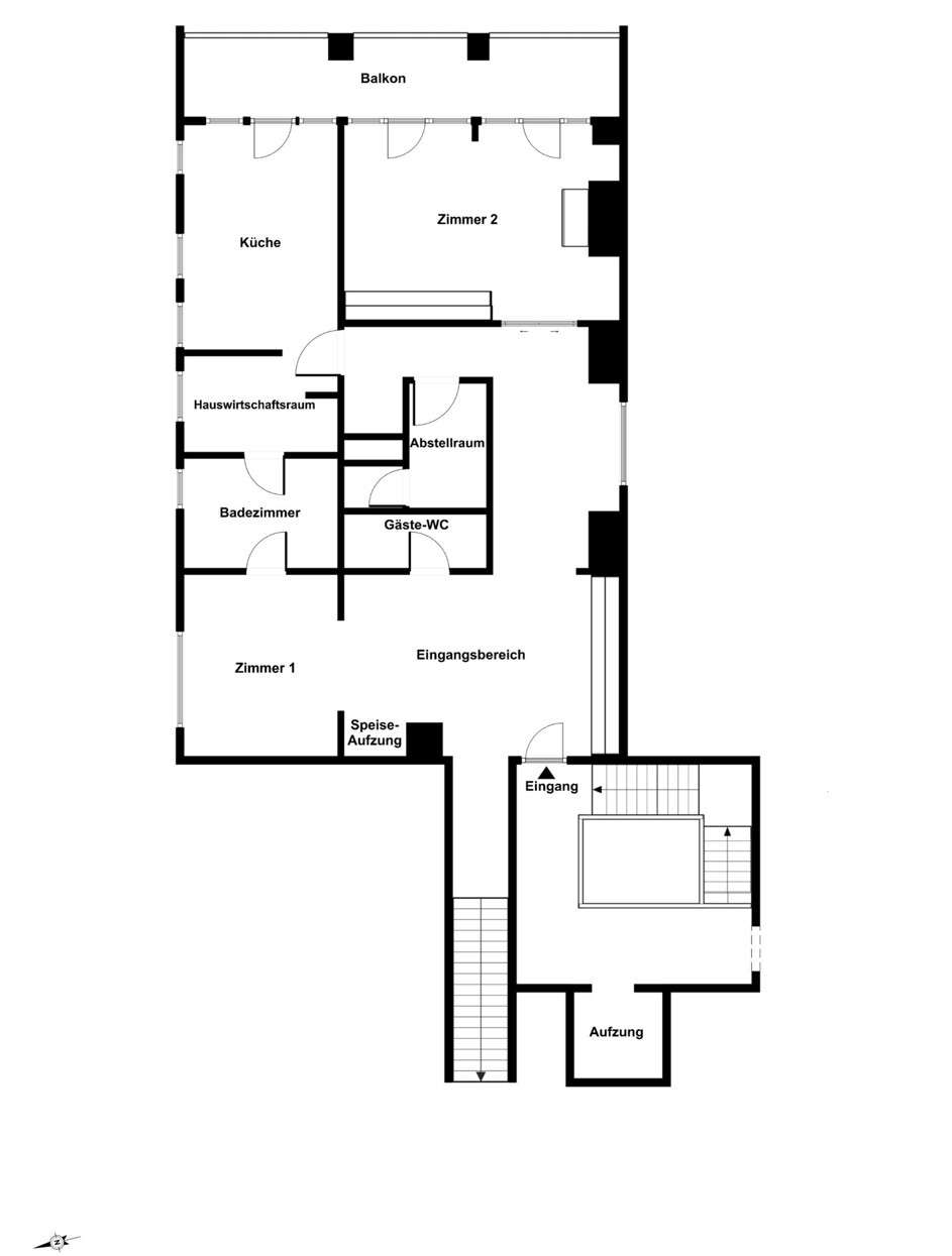
Bis zu vier Schlafzimmer, zwei großzügige, helle Bäder, eine Dampfsauna, zwei Gäste-WCs sowie mehrere praktische Hauswirtschaftsräume runden das Raumangebot ab. Elektrischer Sonnenschutz sowie Natursteinelemente an der Fassade unterstreichen die exklusive Ausstattung und Architektur dieser Immobilie.

Flächen

  • Wohnfläche: 423 m²
  • Zimmer insgesamt: 6
  • Schlafzimmer: 4
  • Badezimmer: 2
  • Etage: 3
  • Stellplätze: 3
  • Stellplatzart: Tiefgarage
  • TG-Stellplätze: 3
  • Balkone: 1

Preise

  • Kaufpreis: 8.900.000 €
  • Hausgeld: 1.644 €
  • Käuferprovision: 3,25 inkl. ges. MwSt
  • Hinweis zur Courtage: Die Käufercourtage i.H.v. 3,25 % inkl. ges. MwSt. ist nach Notarvertragsabschluss verdient und fällig.
  • Stellplatzkaufpreis (Tiefgarage): 80.000 €

Ausstattung

▪ Maisonette-Penthousewohnung
▪ Offene moderne Bulthaup-Einbauküche
▪ Zweite Wirtschaftsküche und HWR‘s
▪ 2 helle Bäder
▪ Dampfsauna
▪ 2 Kamine
▪ Große exklusive Dachterrasse mit beleuchtetem Wasserbassin
▪ 5 Balkone
▪ Weitblick über Alsterlauf und Umgebung
▪ Alarmanlage
▪ Aufzug direkt ins Penthouse
▪ 2 Kellerräume
▪ 3 Tiefgaragen-Stellplätze

  • Art der Ausstattung: luxuriös
  • Heizungsart: Zentralheizung
  • Befeuerung: Gas
  • Bodenbelag: Stein, Dielen
  • Badausstattung: Dusche, Badewanne
  • Küche: Einbauküche
  • Abstellraum
  • Gäste-WC
  • Kamin
  • Personenaufzug
  • Sauna

Sonstiges

  • Immobilie ist verfügbar ab: nach Absprache

Lage und Infrastruktur

Im Herzen des äußerst begehrten Hamburger Stadtteils Eppendorf, in unmittelbarer Nähe zur Alster und den eleganten Quartieren Harvestehude und Winterhude, befindet sich diese außergewöhnlich hochwertig gestaltete Eigentumswohnung. Die Lage zählt zu den exklusivsten und lebenswertesten Adressen der Hansestadt.

Eppendorf vereint auf einzigartige Weise hanseatische Eleganz mit urbaner Lebensqualität. Die prachtvollen Jugendstilfassaden, liebevoll gepflegten Altbauten und begrünten Straßenzüge verleihen dem Stadtbild eine zeitlose Noblesse. Hier trifft historischer Charme auf einen anspruchsvollen, modernen Lifestyle – ein Umfeld, das sowohl stilbewusste Individualisten als auch Familien mit gehobenem Anspruch anspricht.

Die unmittelbare Nähe zur Alster mit ihren weitläufigen Uferwegen sowie zu den grünen Oasen wie dem Haynspark, dem Eppendorfer Park oder dem Innocentiapark ermöglicht eine hohe Lebensqualität und bietet vielfältige Möglichkeiten zur aktiven Freizeitgestaltung in naturnaher Umgebung – direkt vor der Haustür. Ob Joggen, Spazieren oder Wassersport – die Alster liegt direkt vor der Tür.
Die Eppendorfer Landstraße, der Eppendorfer Baum und die Hegestraße bieten ein hochwertiges Angebot an Boutiquen, Designstores, ausgewählten Delikatessengeschäften und gehobenen Einzelhandelsläden. Der beliebte Isemarkt – einer der exklusivsten Wochenmärkte Deutschlands – begeistert mit seinem vielfältigen Angebot an frischen Lebensmitteln, Feinkost und regionalen Spezialitäten. Die Gastronomieszene rund um Eppendorf ist geprägt von exquisiten Restaurants und charmanten Cafés.

Neben der exzellenten Lebensqualität überzeugt Eppendorf auch mit einer hervorragenden Infrastruktur. Renommierte Bildungseinrichtungen – von erstklassigen Kindergärten bis zu angesehenen Schulen – befinden sich in unmittelbarer Umgebung. Die Nähe zu Universität und Kliniken betont die Attraktivität für Akademiker.

Die Anbindung an den öffentlichen Nahverkehr ist ideal. Die U-Bahn-Station „Kellinghusenstraße“ sowie diverse Buslinien sind fußläufig erreichbar. Die Hamburger Innenstadt und der Flughafen sind sowohl mit dem Auto als auch mit den öffentlichen Verkehrsmitteln in kurzer Zeit erreichbar.

Fordern Sie das Exposé zu diesem Objekt an.