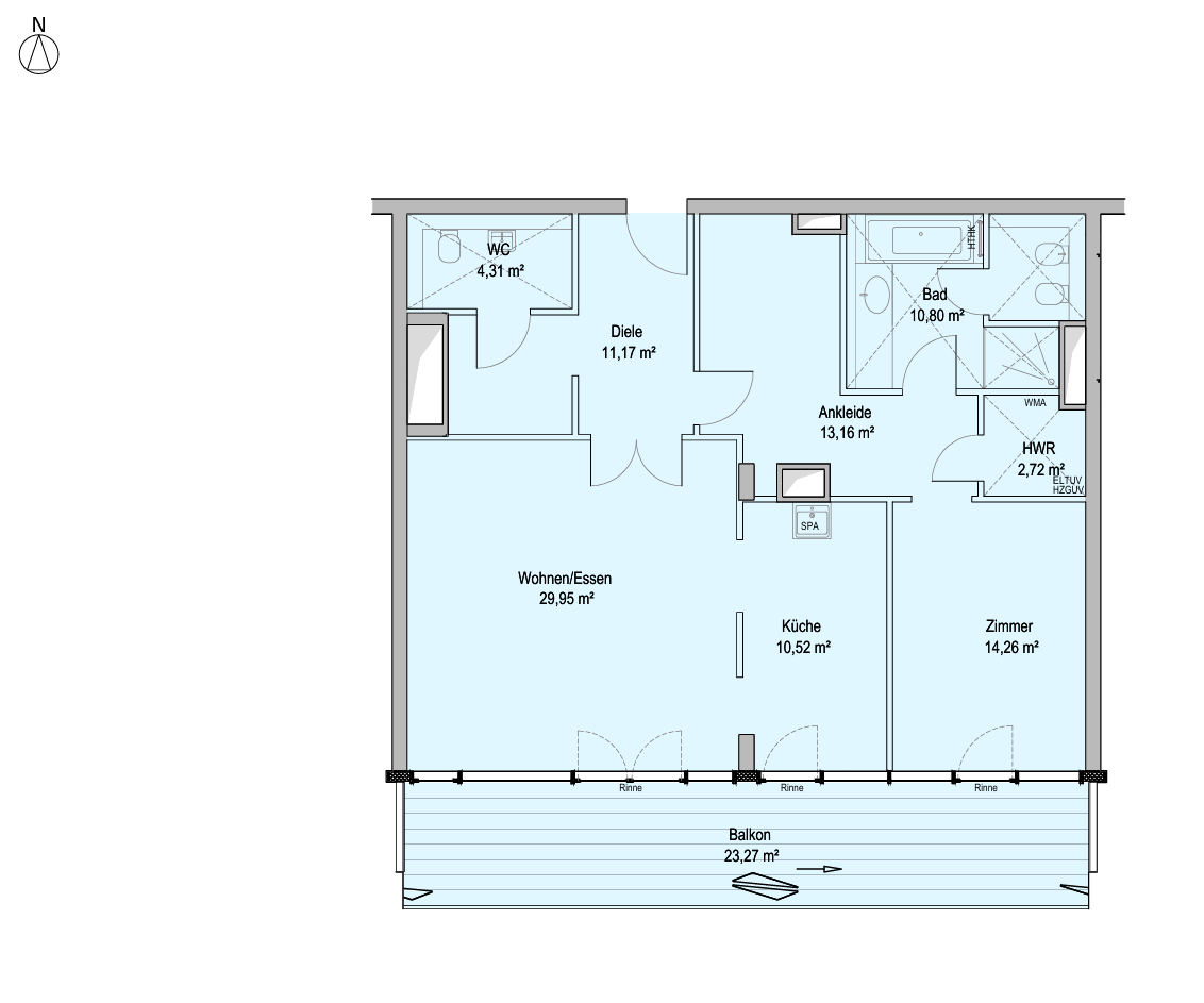
Die Wohnung erstreckt sich über ca. 112 m² Wohnfläche und überzeugt durch eine großzügige, offene Raumgestaltung. Der lichtdurchflutete Wohn-, Ess- und Kochbereich bildet das Herzstück der Immobilie.
Bodentiefe Fenster schaffen fließende Übergänge zur sonnigen Südterrasse und sorgen gleichzeitig für eine helle, freundliche Atmosphäre.
Die hochwertige Designerküche mit Gerätschaften von Gaggenau fügt sich elegant in das Gesamtbild ein und erfüllt höchste Ansprüche an Ästhetik und Funktionalität.
Die nach Süden ausgerichtete Terrasse lädt zum Entspannen ein und erweitert den Wohnraum ins Freie – Der private Bereich umfasst ein großzügiges Schlafzimmer sowie ein stilvolles Masterbad mit Badewanne, Dusche und Doppelwaschtisch. Ergänzt wird das Raumangebot durch ein Ankleidezimmer, Gäste-WC und einen Hauswirtschaftsraum.
Ein besonderes Highlight ist das exklusive Service- und Freizeitangebot des Hauses, das ausschließlich der Bewohner zur Verfügung steht: Ein Concierge-Service von 08:00 bis 24:00 Uhr sorgt für höchsten Komfort im Alltag. Der hauseigene Spa-Bereich mit Sauna, Infrarotmöglichkeiten, Ruhezonen, Duschen sowie zwei Fitnessräumen lädt zur Entspannung und aktiven Erholung ein. Ergänzt wird das Angebot durch stilvolle Gemeinschaftslounges und weitere Annehmlichkeiten wie eine Hundewaschstation.
Diese Immobilie vereint stilvolles Wohnen, höchsten Komfort und eine der besten Lagen Hamburgs zu einem einzigartigen Gesamtangebot.















