Wohnimmobilie > Maisonette-Wohnung
Zu Verkaufen

ZEITLOSE ELEGANZ AUF ZWEI EBENEN – EXKLUSIVE MAISONETTEWOHNUNG MIT SÜD-WEST-LOGGIEN

22848 Norderstedt
750.000 €

Aspel_15a
2018
117 m²
4
Diese außergewöhnliche Maisonettewohnung befindet sich in einem modernen, äußerst gepflegten Wohnensemble und vereint stilvolle Architektur mit einer großzügigen Raumaufteilung auf zwei Ebenen. Das durchdachte Wohnkonzept erinnert an ein Townhouse und überzeugt mit klarer Formensprache, hochwertigen Materialien und einem zeitlos eleganten Wohnambiente – ideal für Paare oder Familien mit gehobenen Ansprüchen.

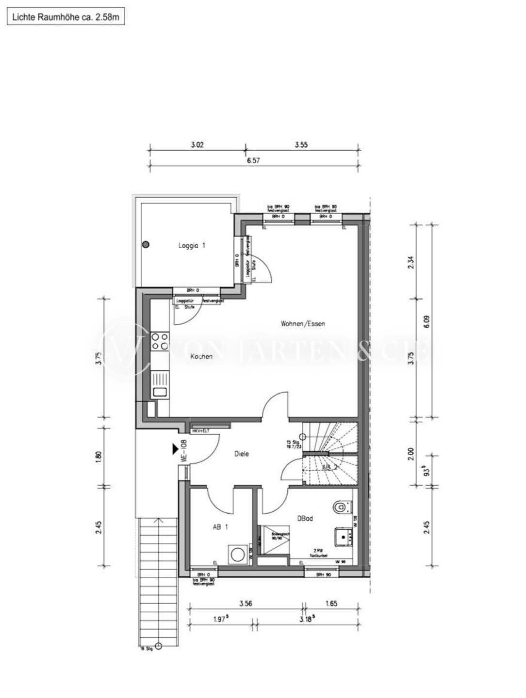
Im 1. Obergeschoss bildet der offen gestaltete Wohn-, Koch- und Essbereich das stilvolle Zentrum der Wohnung. Die hochwertige Einbauküche ist mit Markengeräten ausgestattet und fügt sich harmonisch in das offene Raumkonzept ein. Eine angrenzende Süd-West-Loggia mit Blick ins Grüne erweitert den Wohnraum ins Freie – dank der umlaufenden Verglasung ist sie fast ganzjährig nutzbar und schafft eine Verbindung zwischen Innenraum und Natur. Ein praktischer Hauswirtschaftsraum sowie ein elegantes Tageslichtbad mit bodengleicher Dusche und exklusiver Ausstattung runden den durchdachten Grundriss dieser Ebene ab.

Über einen großzügigen, hellen Treppenbereich gelangen Sie ins 2. Obergeschoss, das dem privaten Rückzugsbereich gewidmet ist. Hier erwarten Sie drei Schlafzimmer, ein weiteres modernes Tageslichtbad mit Badewanne sowie eine zweite verglaste Süd-West-Loggia. Das geräumige Hauptschlafzimmer bietet ausreichend Platz für einen individuell gestaltbaren Ankleidebereich.

Die Ausstattung der Wohnung erfüllt höchste Ansprüche: Echtholzparkett, Fußbodenheizung in allen Räumen, bodentiefe Fenster, stilvolle Downlights, maßgefertigte Einbauschränke sowie zargenlose Türen unterstreichen das hochwertige, puristische Designkonzept und schaffen eine helle, moderne Wohnatmosphäre auf höchstem Niveau.
Zwei zur Wohnung gehörende Stellplätze runden dieses exklusive Angebot ab.

Ein stilvolles Zuhause, das Großzügigkeit, Ruhe und hochwertige Architektur zu einem harmonischen Ganzen verbindet – Wir freuen uns auf Ihren Anruf!

Flächen

  • Wohnfläche: 117 m²
  • Zimmer insgesamt: 4
  • Stellplätze: 2
  • Stellplatzart: Freiplatz
  • Außenstellplätze: 2
  • Loggien: 1

Preise

  • Kaufpreis: 750.000 €
  • Hausgeld: 325 €
  • Käuferprovision: 3,57 % inkl. MwSt.
  • Hinweis zur Courtage: Die Käufercourtage i.H.v. 3,57 % inkl. MwSt. ist nach Notarvertragsabschluss verdient und fällig.

Ausstattung

  • Heizungsart: Fußbodenheizung
  • Befeuerung: Luft-Wärmepumpe
  • Bodenbelag: Fliesen, Parkett
  • Badausstattung: Dusche, Badewanne
  • Küche: Einbauküche
  • Abstellraum
  • Gäste-WC

Lage und Infrastruktur

Die Maisonette-Wohnung befindet sich in einer der gefragtesten Wohnlagen Norderstedts – ruhig gelegen in der Straße Aspelohe, die sich durch gewachsenen Baumbestand, stilvolle Bebauung und ein gepflegtes, nachbarschaftliches Umfeld auszeichnet. Die Umgebung ist geprägt von einer angenehmen Mischung aus moderner Architektur, eleganten Einfamilienhäusern und kleinen Wohnensembles, die sich harmonisch in das grüne Straßenbild einfügen.

Besonders hervorzuheben ist die naturnahe Lage: In wenigen Gehminuten erreicht man weitläufige Grün- und Parkanlagen, die mit ihren Spazierwegen, Spielplätzen und Sportmöglichkeiten eine hohe Lebensqualität bieten. Die umliegende Bebauung ist zurückhaltend, die Atmosphäre ruhig – ideal für alle, die ein stilvolles Zuhause mit Rückzugsqualität suchen.

Verschiedene Einkaufsmöglichkeiten, charmante Cafés, Bäckereien und ärztliche Versorgung sind schnell erreichbar. Familien profitieren von einem breiten Angebot an Kindergärten, Grundschulen sowie weiterführenden Schulen im direkten Umfeld. Die Nähe zu Naherholungsflächen, Sportvereinen und Freizeiteinrichtungen unterstreicht die Attraktivität des Standortes zusätzlich.

Die hervorragende Anbindung an den öffentlichen Nahverkehr sowie die schnelle Erreichbarkeit der A7 ermöglichen kurze Wege sowohl ins Hamburger Stadtzentrum als auch zum Flughafen. Die U-Bahn-Anbindung sowie diverse Buslinien verbinden Norderstedt zuverlässig mit der Metropolregion Hamburg – ein idealer Standort für Berufspendler, die naturnah und dennoch stadtnah leben möchten.

Request the exposé for this property.